Home
Shop House Plans
Shop Garage Plans
Architectural Styles
Set of Plans Explained
Plan Modification Request
Custom Home Plans
Awards
Builder Program
About Us
Contact Us
FAQ
PDF, CAD or Bond Set?
© 2026
Royal Oaks Design
.
Subscribe to see new Plans!
Login
0
Cart
Apple Pay
Mastercard
Visa
Home
Shop House Plans
Shop Garage Plans
Architectural Styles
Set of Plans Explained
Plan Modification Request
Custom Home Plans
Awards
Builder Program
About Us
Contact Us
FAQ
PDF, CAD or Bond Set?
Login
Search
0
Cart
Home
House Plans
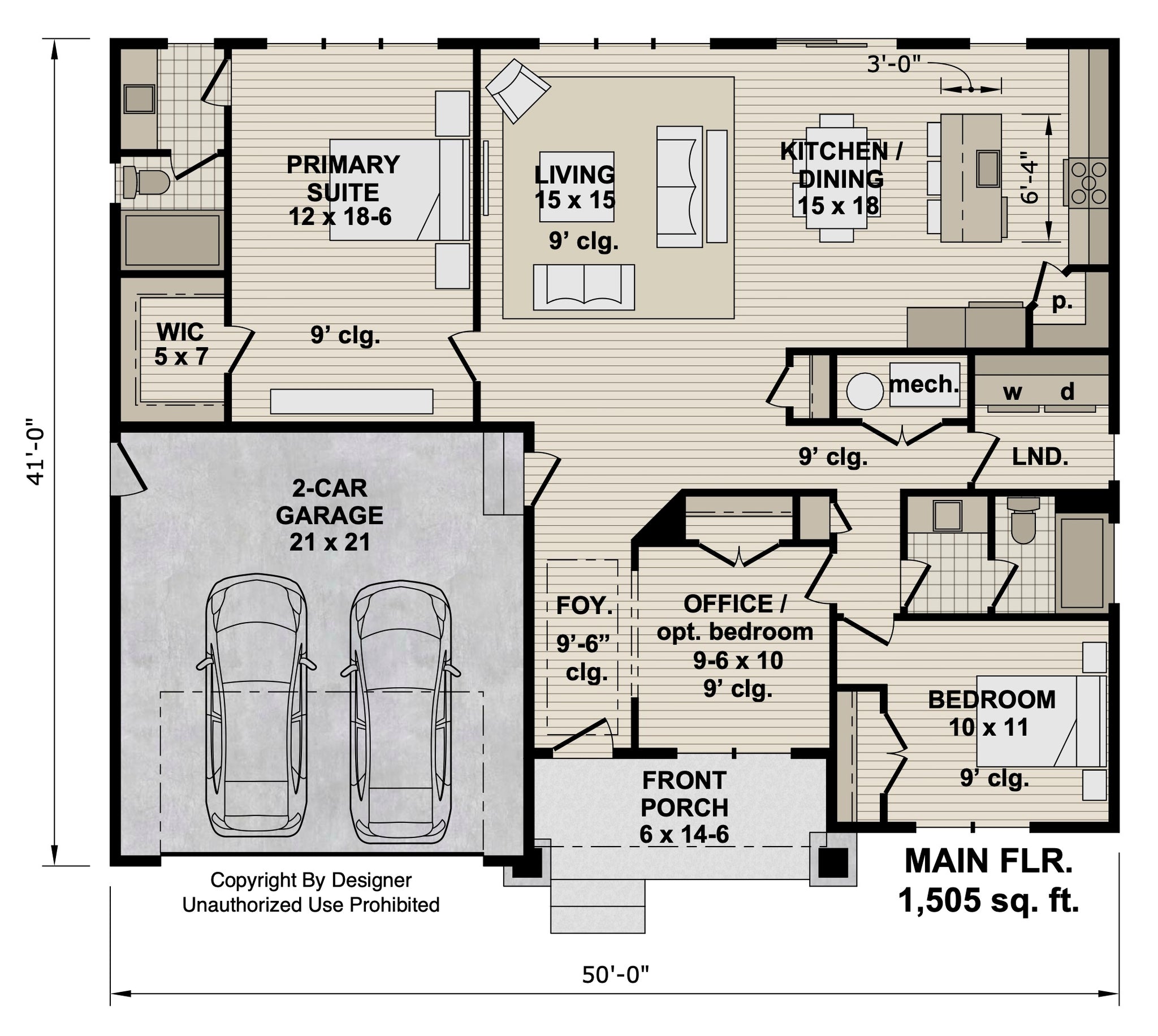
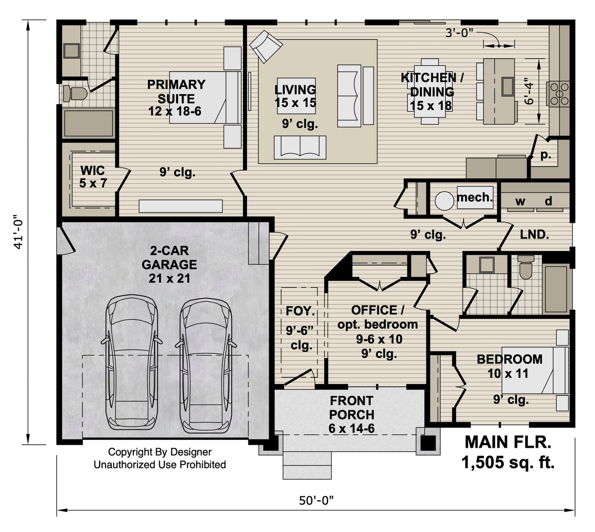
Brady House Plan
Previous
|
Next
Plan Number:
HBN-25-002-1C-pdf
Brady House Plan
2
Bedrooms ●
3
Bedrooms ●
2
Baths ●
1505*
Living Sq. Ft.
*Living Square Footage is the conditioned air living space and does not include unfinshed spaces like bonus rooms.
$2,050.00 USD
Select to Purchase
Electronic PDF
5 Bond Sets
5 Bond Sets & PDF
8 Bond Sets
Electronic CAD
5 Bond Sets / PDF / CAD
Add to cart
You may also like
Search our shop
Find your next crush
Find your next crush